Модульная котельная МКУ-2,5 в Омске

Модульная котельная МКУ-2.5 — система водогрейных котельных агрегатов, оснащенная всем необходимым оборудованием, и собранная в компактном помещении из сварного металлического материала. Используется для производства тепловой энергии на нужды отопления (нагрев жидкости до 115 °С), и воды для горячего водоснабжения.

Цена:
2 900 000 руб.
Количество:
Отправляя свои личные данные через формы на сайте, Вы даёте своё согласие на обработку персональных данных согласно Федеральному закону №152-ФЗ «О персональных данных» от 27.07.2006 г. в редакции от 01.07.2017.

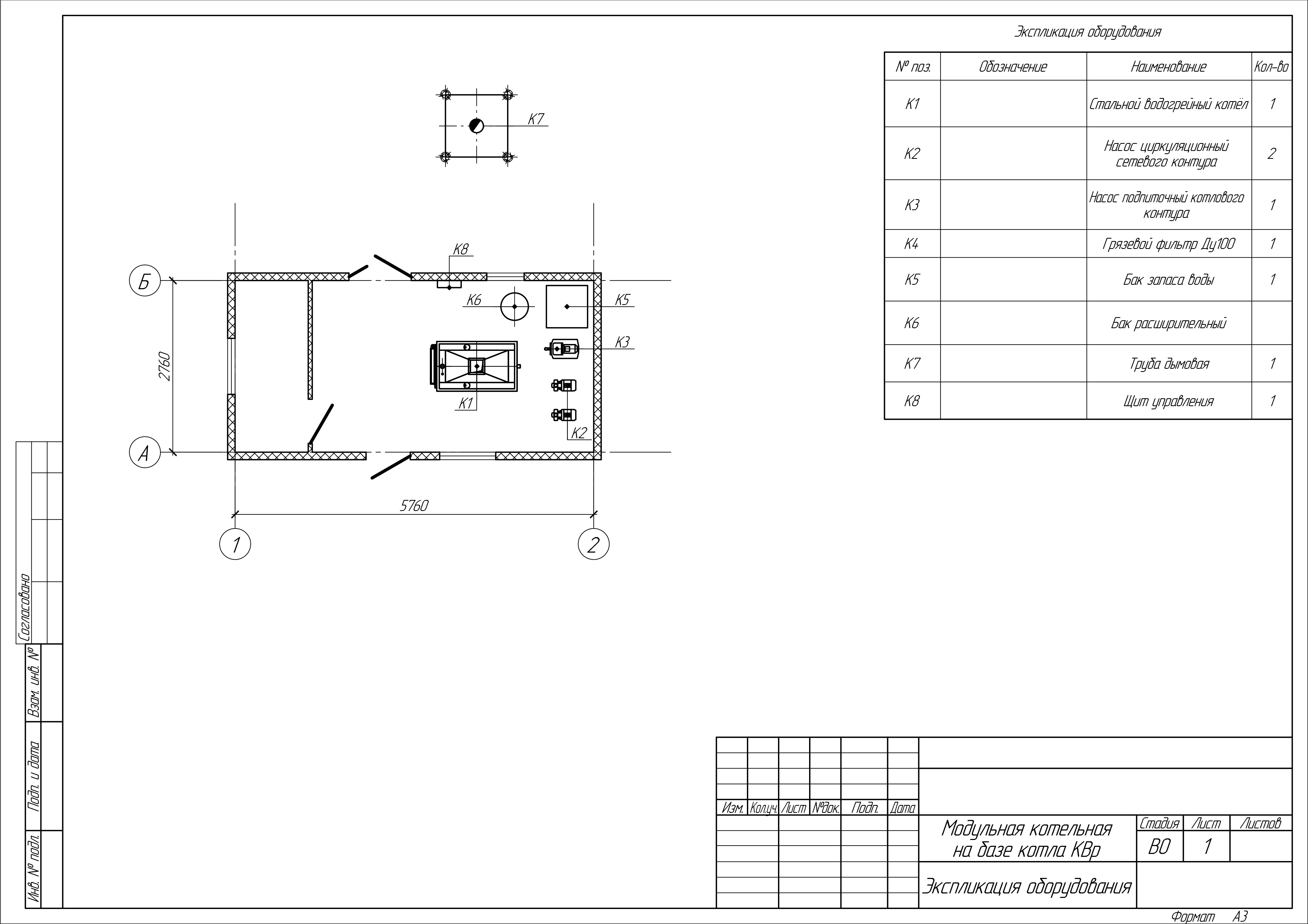
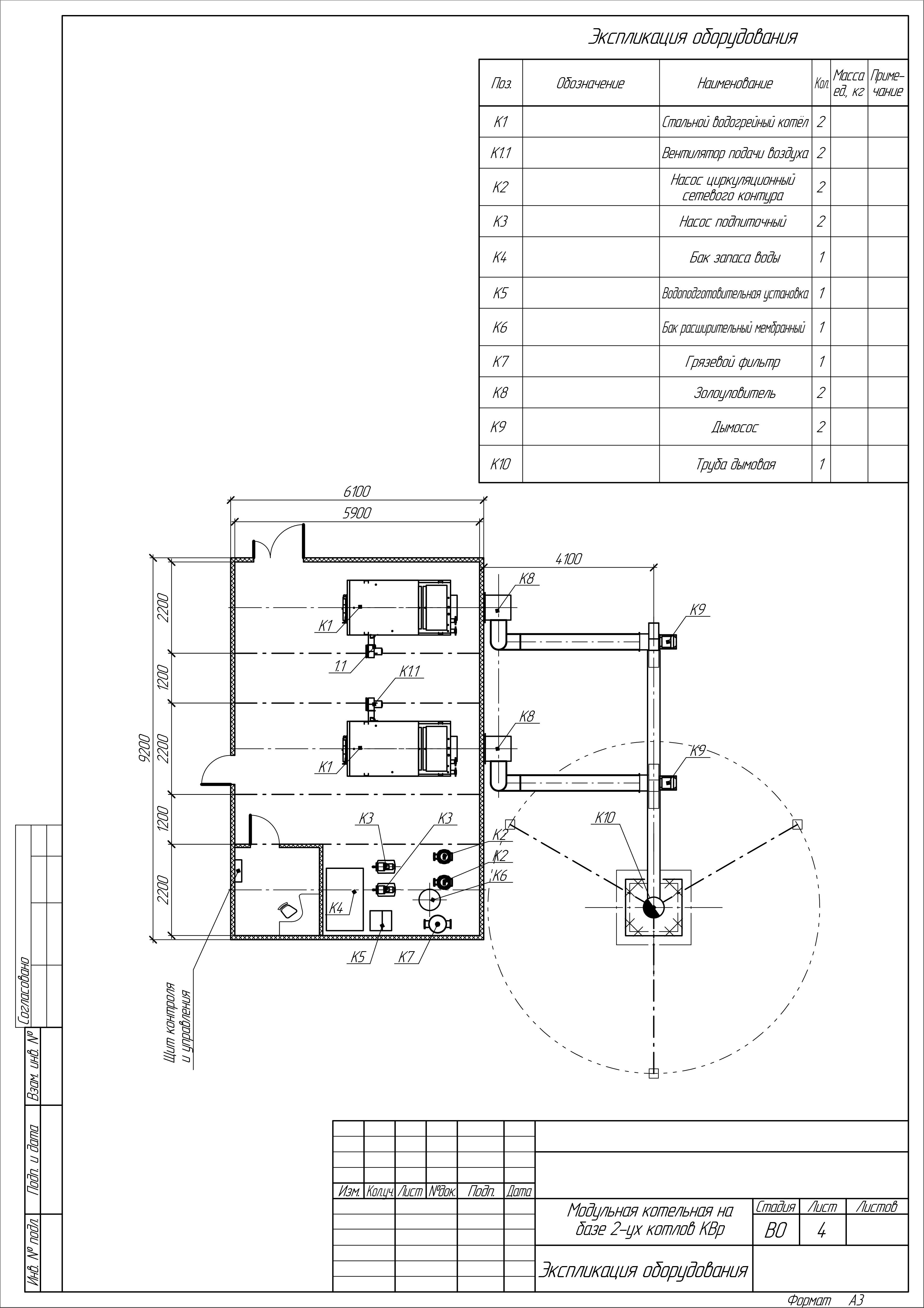
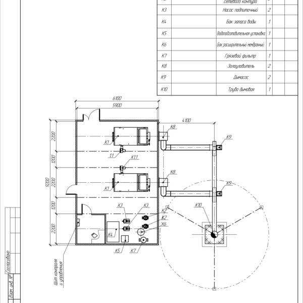
Устройство и принцип работы модульной котельной МКУ-2.5

Модульная котельная МКУ-2.5 состоит из одного или нескольких утепленных блок-модулей с необходимым котельным оборудованием. Котельная может иметь одноконтурное или двухконтурное исполнение, оборудованной пластинчатыми теплообменниками и приборами водоподготовки жидкости. Помещение оснащается водоотведением, радиаторным отоплением, системами вентилирования для комфортной работы персонала котельной.

Условное обозначение

Модульная котельная МКУ-2.5, где:

  • М — модульная;
  • К — котельная;
  • У — установка;
  • 2.5 — мощность котельной в МВт

Монтаж модульной котельной МКУ-2.5

Совместно с монтажом модулей котельной установки, выполняется монтаж транспортеров углеподачи и шлакоудаления, дымовых труб с газоходами, трубопроводов, соединяющих модули. По необходимости подключаются электросиловое оборудование и котельная автоматика. Устройство доставляется в максимальной заводской сборке, готовое к монтажу и пуско-наладочным работам. Установка монтируется на подготовленное выравненное основание и надежно фиксируется при помощи анкерных креплений.

Монтаж и пуско-наладочные работы котельного оборудования производятся специалистами с соблюдением СНиП 11-35-76 «Котельные установки» и «Правил устройства и безопасной эксплуатации паровых и водогрейных котлов».

Характеристики
Мощность: 2.5 МВт
Мощность: 2.16 Гкал
Установленные котлы: КВр-1,25; КВм-1,25; КВр-2,5; КВм-2,5
Вид топлива: Бурый уголь; Каменный уголь
Тип топочного устройства: Ручная; Механическая
Вид топки: Колосниковая решетка; ОУР; Шнековая подача; ТШПМ
Топливоподача и шлакоудаление: Ручная; Механическая
Температура дымовых газов, не более: 250 °C
КПД, не менее: 80 %
Схемы

Города поставок

Москва
Пн-Пт 09:00 - 18:00
Сб 09:00 - 17:00
Карачаево-Черкесская Республика
Пн-Пт 09:00 - 18:00
Сб 09:00 - 17:00
Екатеринбург
Пн-Пт 09:00 - 18:00
Сб 09:00 - 17:00

Совершите покупку за 4 шага

Шаг 1
Выберите товары из каталога
Шаг 2
Поместите нужные вам товары в корзины
Шаг 3
Укажите свои контактные данные в форме обратной связи
Шаг 5
Ожидайте звонка от менеджера для оформления покупки

Похожие товары

Модульные котельные
Модульные котельные
Цена от 0 руб.
Котельные установки
Модульная котельная МКУ-9.0 — система водогрейных котельных агрегатов, оснащенная всем необходимым оборудованием, и собранная в компактном помещении из сварного металлического материала. Используется для производства тепловой энергии на нужды отопления (нагрев жидкости до 115 °С), и воды для горячего водоснабжения.
Вы смотрели эти товары
Котельные установки
Модульная котельная МКУ-2.5 — система водогрейных котельных агрегатов, оснащенная всем необходимым оборудованием, и собранная в компактном помещении из сварного металлического материала. Используется для производства тепловой энергии на нужды отопления (нагрев жидкости до 115 °С), и воды для горячего водоснабжения.
Котельные установки
Модульная котельная МКУ-9.0 — система водогрейных котельных агрегатов, оснащенная всем необходимым оборудованием, и собранная в компактном помещении из сварного металлического материала. Используется для производства тепловой энергии на нужды отопления (нагрев жидкости до 115 °С), и воды для горячего водоснабжения.
Отопительные котлы
Водогрейный котел КВм-2.2 на ДВО используется для нагрева жидкости до 115 °С, применяемой в системах отопления и горячего водоснабжения. Отопительные приборы КВм-2.2 способны прогревать помещения площадью до 22000 м². Твердотопливный котел оснащается механической топкой на древесных отходах со шнековой подачей. Дополнительно к агрегату приобретаются сопутствующие товары: вентиляторы, дымососы, циклоны, дымовые трубы, бункер топки и другое котельное оборудование.